Villa a schiera in vendita a Macello
Macello
Zona: - Regione Berga, 13
€ 99.000
#238 mq
#2
Vedi più foto
Cod. 13
€ 99.000
Classe energetica: NA - Non Applicabile
Nuovo

Villa a schiera in vendita a Macello

- Regione Berga, 13
# 238 mq
# 2 Bagni
Descrizione

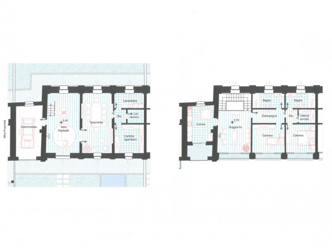
A Macello, in Regione Berga, a pochi minuti da Pinerolo, proponiamo in Vendita porzione di cascinale libero su due lati di circa 240 MQ. La soluzione si sviluppa su due livelli e viene venduta al grezzo offrendo così la possibilità di personalizzarla a proprio gusto. Il piano terra, con una metratura di circa 140 MQ, ospita i locali accessori dell'abitazione ed è possibile creare i seguenti ambienti: ingresso, tavernetta, lavanderia, disimpegno, locale tecnico, cantina e box auto. Dalla scala interna, realizzata in laterocemento, si accede al piano primo che ha la stessa metratura del piano terra e ospita i seguenti ambienti: soggiorno, due camere da letto, due bagni finestrati, cucina abitabile con terrazzino, disimpegno e cabina armadi. Da questi ambienti si può godere di una piacevole vista sul Monviso. Essendo la soluzione ancora da ultimare gli spazi possono essere modulati a seconda delle proprie esigenze personali. Le ampie aperture e la piena esposizione a Sud garantiscono un'elevata luminosità a tutti gli ambienti rendendoli confortevoli e accoglienti. Il tetto è a vista ed è in legno e il manto di copertura è in pietra. C'è già il permesso approvato dal comune per installare l'impianto fotovoltaico sulla copertura. Completa la proprietà un giardino privato di circa 280 mq. Questa porzione di immobile ha già un permesso di costruire approvato e gli oneri pagati.

  • Villa a schiera in vendita a Macello
  • Villa a schiera in vendita a Macello
  • Villa a schiera in vendita a Macello
  • Villa a schiera in vendita a Macello
  • Villa a schiera in vendita a Macello
  • Villa a schiera in vendita a Macello
  • Villa a schiera in vendita a Macello
  • Villa a schiera in vendita a Macello
  • Villa a schiera in vendita a Macello
  • Villa a schiera in vendita a Macello
  • Villa a schiera in vendita a Macello
  • Villa a schiera in vendita a Macello
  • Villa a schiera in vendita a Macello
  • Villa a schiera in vendita a Macello
  • Villa a schiera in vendita a Macello
  • Villa a schiera in vendita a Macello
  • Villa a schiera in vendita a Macello
  • Villa a schiera in vendita a Macello
  • Villa a schiera in vendita a Macello
  • Villa a schiera in vendita a Macello
  • Villa a schiera in vendita a Macello
  • Villa a schiera in vendita a Macello
  • Villa a schiera in vendita a Macello
  • Villa a schiera in vendita a Macello
mostra di piùmostra di meno
Caratteristiche
Scopri le caratteristiche di questo immobile
Planimetrie
Ubicazione immobile
Alcuni immobili che potrebbero interessarti
Casa Semindipendente in vendita a Macello
in Vendita
Macello
€ 139.000
Casa Semindipendente in vendita a Macello
Cod. 21
Macello. La soluzione proposta è una casa semi-indipendente, su due livelli, libera su i due lati e si trova in centro paese. L'immobile...
Dettagli
Ultimo aggiornamento 16/10/2025
×
Codice
Contratto
Scegli dove cercare
Tipologia - multiscelta
Prezzo


Totale mq


Locali minimi
Bagni minimi
Camere minime
Altre opzioni - multiscelta